CASA 50

 

Casa 50

Disciplina:Projeto flexibilizado (P-flex) – Meio Lote

Orientadora: Silke Kapp

Período:

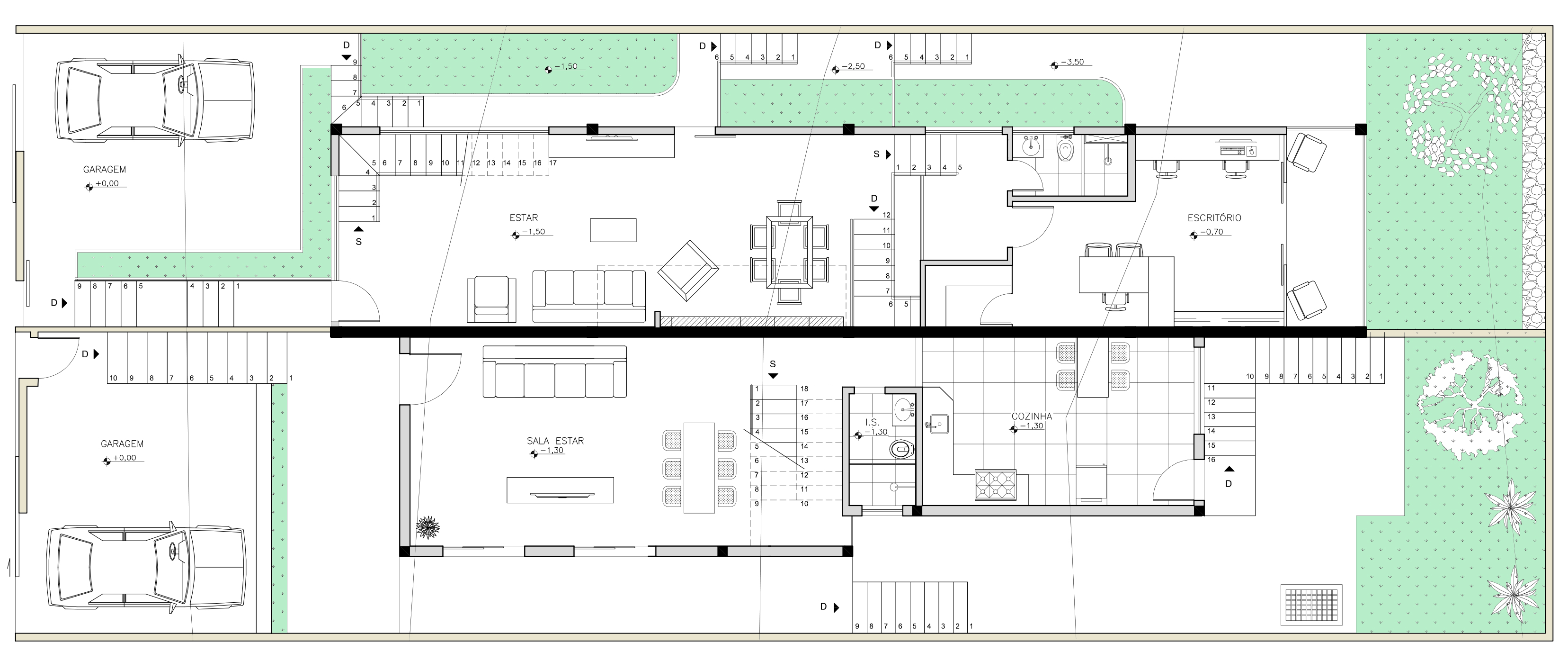
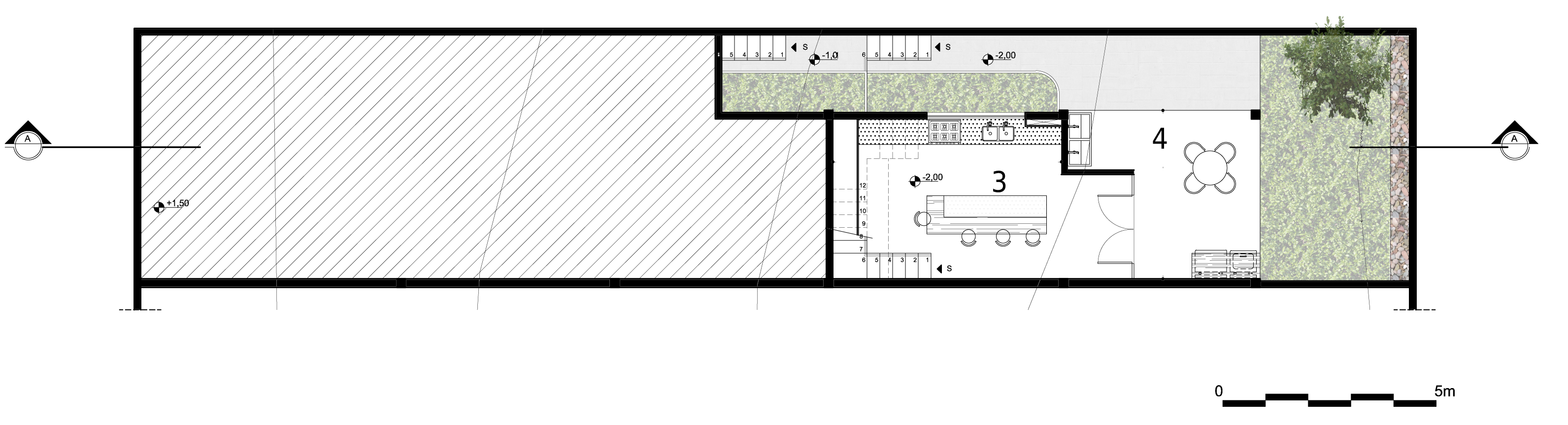
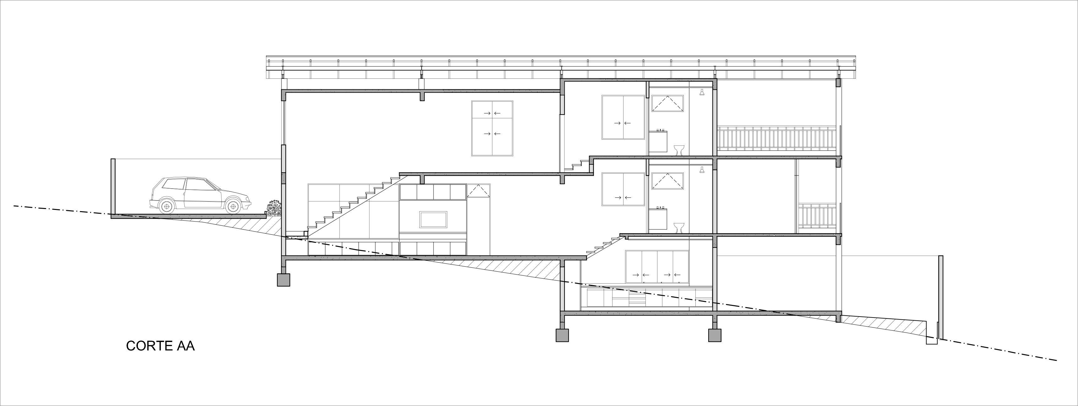
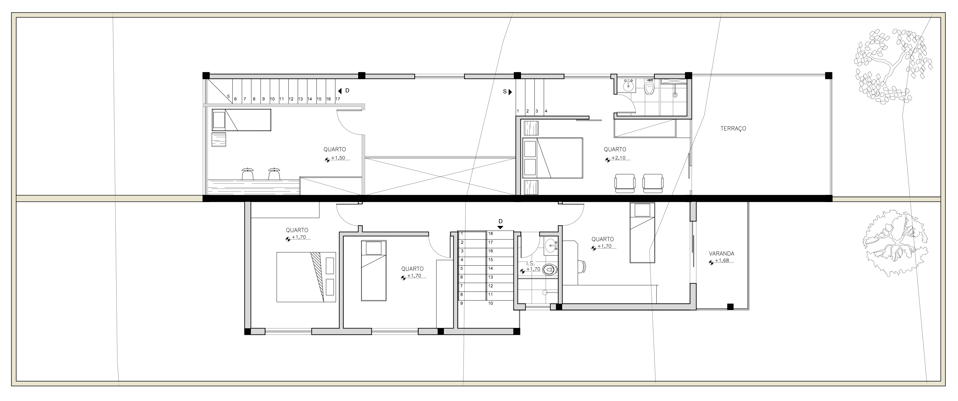
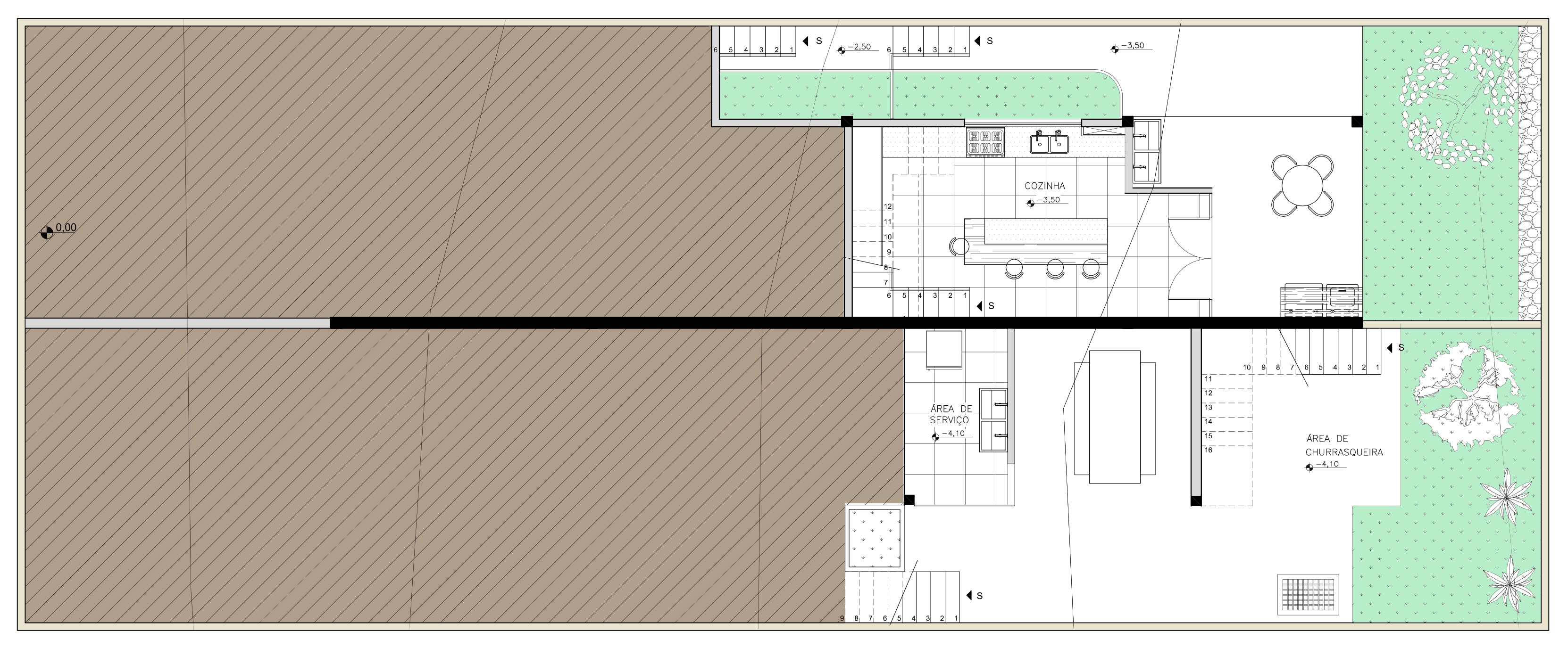
Na Região Metropolitana de Belo Horizonte (RMBH) é comum a comercialização do chamado “meio lote”, isto é, a divisão do lote-padrão de 360m² (12m x 30m) por dois proprietários, com a construção de duas moradias independentes entre si. Algumas prefeituras municipais não admitem essa prática, enquanto outras a reconhecem, concedendo até escritura e registro compartilhados.

Propõe-se que os estudantes desenvolvam projetos de moradias para esse tipo de situação, investigando suas potencialidades e limitações. Os terrenos serão definidos pelos estudantes, sempre em dupla, de modo que cada um seja responsável por uma das unidades de moradia, mas que haja negociações sobre como dividir ou compartilhar lote, acesso à via pública, áreas livres e a própria construção. O grau de independência ou conjunção das unidades dependerá dessa negociação.

Palavras-chave: habitação, lote, divisão, negociação

Localização: bairro Marize (BH)

Área: 360m²

Inclinação média: 17%

Orientação: NO-SE

Legislação: localizado na ZAR-2 (zona de adensamento restrito)

  • Coeficiente de Aproveitamento: 1,0
  • Taxa de permeabilidade mínima: 10%
topo
topo
topo

home