ACADEMIA DE MÚSICA
Disciplina: Trabalho de Conclusão de Curso (TCC)
Orientadora: Grace Gutierrez
Período: 10°
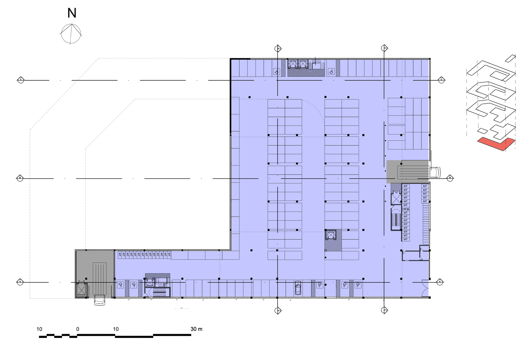
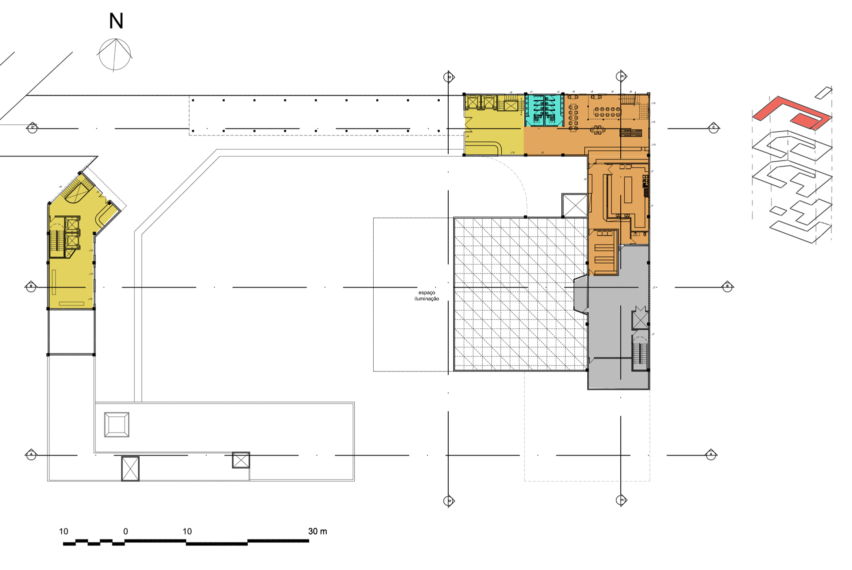
Concepção de uma rede de escolas de música atrelada ao ensino público, nos moldes de El Sistema (Venezuela) e do Centro de Musicalização Infantil da Escola de Música (UFMG), entre outros projetos similares, que visam à democratização do acesso à música. Projeto de uma academia como a sede desse sistema. Detalhamento da adequação acústica das salas de apresentação e aprendizagem - Tempo de reverberação e Nível de Isolamento esperado, segundo cada atividade.
Palavras-chave: educação, música, sala de concertos, acústica arquitetônica
séc. XVII – “Lei das Aldeias Indígenas” - ordenado o ensino de canto nas escolas dos jesuítas – não somente canto religioso, como cantigas populares de Portugal
1854 – Decreto Federal nº 331A – estipula noções de música e ensino de canto nos currículos escolares do ensino público
década de 1930 – introdução do canto orfeônico na rede escolar, com a criação da Superintendência de Educação Musical e Artística (SEMA), no Rio de Janeiro, dirigida por Villa-Lobos. Ênfase no papel da música para a construção do caráter cívico e com objetivos sociais. Projeto adotado em âmbito nacional pelo decreto federal nº 19.890 de 1931.
1936 – criação do Curso de Orientação e Aperfeiçoamento do Ensino de Música e Canto Orfeônico, por Villa-Lobos, para formar educadores como multiplicadores dessa prática
1942 – criação do Conservatório Nacional de Canto Orfeônico, para continuar o trabalho de formação de professores e atender a demanda nacional
1961 – Lei de Diretrizes e Bases da Educação nº 4.024 – a disciplina educação musical é instaurada em substituição ao método de Villa-Lobos. Buscava proporcionar um ensino de música mais acessível, com a exploração de novos recursos para a educação musical além do canto orfeônico, através de jogos e brincadeiras com instrumentos de percussão.
1971 – Lei de Diretrizes e Bases da Educação nº 5.692 – a educação musical é banida do currículo escolar, sendo introduzida a educação artística, polivalente nas áreas de artes plásticas, cênica, música e desenho. Os antigos profissionais de educação musical, fora de contexto, tiveram que voltar a fazer um curso de formação, dessa vez em Educação Artística, curso criado em 1974.
1974 – Criado o curso de Licenciatura em Educação Artística – os antigos profissionais de educação musical tiveram que voltar a fazer um curso de formação. Poucos estudantes se habilitaram em música, e a atividade foi desaparecendo do currículo da maioria das escolas. A educação artística, à época, não possuía status de disciplina na educação básica.
1996 – Lei Federal nº 9.394 – as artes voltam como componente curricular obrigatório da educação básica, não sendo estipulada, contudo, carga horária específica para cada linguagem artística. Os cursos de Educação Artística também se subdividiram em licenciaturas específicas para cada linguagem.
2008 – Lei Federal nº 11.769 – reinstaura a música como componente curricular obrigatório da disciplina educação artística. As escolas tem 3 anos, a partir da promulgação da lei, para adequar seu conteúdo pedagógico. Na prática, é um importante passo, mas impossível de ser realizado em intervalo tão curto, devido à falta de profissionais qualificados.
Fonte: AMATO, 2006; CÁRICOL, 2012
A lei de diretrizes e bases da educação, desde 2008, estabelece o ensino da música como obrigatório para o ensino fundamental – porém, atualmente não há profissionais capacitados em número suficiente para atender essa demanda.
A música deverá ser conteúdo obrigatório, mas não exclusivo, do componente curricular...
LDB, 5a edição, modificada em 2008
Os locais de entretenimento e apreciação da música, teatro e dança em BH estão demasiadamente concentrados na região central, o que dificulta seu acesso pelos moradores das periferias, principalmente para espetáculos à noite.
El Sistema: sistema nacional de orquestras e coros juvenis da Venezuela – um projeto de democratização do acesso à música erudita, também utilizado para a transformação social.
Projeto Cariúnas: projeto de Belo Horizonte, sediado no bairro Planalto, regional Norte, de oferta de aulas de instrumentos e musicalização gratuitos para estudantes da região.
CMI – Centro de Musicalização Infantil da UFMG: projeto da licenciatura da Escola de Música da UFMG, oferece aulas de musicalização, instrumentos, práticas de grupo e orquestrais para jovens da região, incluindo muitos filhos de funcionários da universidade. Ao mesmo tempo, capacita os alunos da licenciatura, através de estágios, à educação musical de maneira prática.
*Entrevista – Betânia Parizzi – coordenadora
Entrevistas: Rosa Lúcia Braga – diretora da escola de música Núcleo Villa-Lobos
Margarida Borghoff – diretora do Conservatório de Música da UFMG
Espaços estimulantes – utilização de cores vibrantes, ambiente criativo e recursos de interatividade e multimídia
Comunicação visual entre níveis, nos espaços de circulação – podendo ser espaços de permanência
Acesso por dois lados, para atender tanto a quem vem de ônibus como aos passageiros do metrô
Aproveitar a vista – valorizar as fachadas leste e sul como espaços de lazer e convivência
Criar espaços de uso coletivo, para atender à comunidade e bairros do entorno, servindo também como espaços de apresentações informais